Nabízíme k prodeji byt 3+kk v rezidenčním projektu Vinohradská 67 v prestižní lokalitě Praha 2. Tato jednotka představuje ideální volbu jak pro vlastní bydlení, tak jako investiční příležitost s dlouhodobým potenciálem zhodnocení.
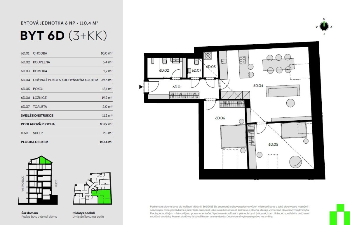
Plocha jednotky celkem činí 110,4 m², byt je navržen ve vysokém standardu. Obytný prostor doplňuje dřevěná podlaha FREVINI MONACO, pokládaná ve vzoru chevron. Interiérové dveře kombinují klasické dřevěné prvky s ocelovými skleněnými dveřmi se strukturovaným a čirým sklem, čímž podtrhují moderní charakter prostoru. K bytu náleží sklep.
Elektroinstalace je osazena designovými vypínači a zásuvkami JUNG LS 990. V bytě jsou instalována zapuštěná bodová svítidla McLED TORO a samozřejmostí je také nástěnná klimatizační jednotka pro zajištění komfortu v letních měsících.
Koupelna je vybavena sanitou LAUFEN KARTELL, keramické obklady a dlažby EMIL CERAMICA v moderních odstínech dodávají koupelně nadčasový vzhled.
Projekt citlivě propojuje živý městský rytmus Vinohrad s historickým charakterem domu, který prochází kompletní a precizní rekonstrukcí dle nejvyšších současných standardů. Důraz je kladen nejen na technickou kvalitu provedení, ale i na detail, funkčnost dispozic a reprezentativní společné prostory. Preciznost je zde skutečně vizitkou celého projektu.
Dům nabídne celkem 41 bytových jednotek rozložených do 8 podlaží. Dokončení projektu je plánováno na rok 2028.
Vinohrady jsou dlouhodobě vyhledávanou adresou spojující městský život s příjemnou atmosférou rezidenční čtvrti. V bezprostředním okolí se nachází široká občanská vybavenost, kavárny, restaurace, bistra i upravené parky. Je zde i perfektní dostupnost MHD, díky níž se do centra města dostanete během několika minut.
Číslo zakázky
VN67-6D
Cena
33 409 500 Kč
Adresa
Vinohradská, Praha 2 - Vinohrady
Druh
Byty
Dispozice
3+kk
Užitná plocha
110 m2
| Zakázka | Dispozice | Patro | Užitná plocha | Terasa/Balkón/Lodžie | Zahrada | Cena | |
|---|---|---|---|---|---|---|---|
| VN67-1A | 2+kk | přízemí | 84 m2 | Ne / Ano / Ne | Ne | 17 945 000 Kč | Detail |
| VN67-1B | 2+kk | přízemí | 55 m2 | Ne / Ano / Ne | Ne | 13 150 000 Kč | Detail |
| VN67-2A | 1+kk | 1. patro | 37 m2 | Ne / Ano / Ne | Ne | 10 340 000 Kč | Detail |
| VN67-2B | 2+kk | 1. patro | 62 m2 | Ne / Ano / Ne | Ne | 17 811 000 Kč | Detail |
| VN67-2C | 1+kk | 1. patro | 38 m2 | Ne / Ne / Ne | Ne | 11 010 500 Kč | Detail |
| VN67-2D | 1+kk | 1. patro | 38 m2 | Ne / Ne / Ne | Ne | 10 903 000 Kč | Detail |
| VN67-2E | 3+kk | 2. patro | 86 m2 | Ne / 2 m2 / Ne | Ne | 24 930 000 Kč | Detail |
| VN67-2F | 2+kk | 1. patro | 58 m2 | Ne / Ano / Ne | Ne | 16 670 000 Kč | Detail |
| VN67-2G | 2+kk | 1. patro | 48 m2 | Ne / Ne / Ne | Ne | 14 031 000 Kč | Detail |
| VN67-2H | 2+kk | 1. patro | 47 m2 | Ne / Ne / Ne | Ne | 13 250 000 Kč | Detail |
| VN67-3A | 2+kk | 2. patro | 54 m2 | Ne / Ano / Ne | Ne | 16 203 000 Kč | Detail |
| VN67-3B | 2+kk | 2. patro | 74 m2 | Ne / Ano / Ne | Ne | 22 591 000 Kč | Detail |
| VN67-3C | 2+kk | 3. patro | 50 m2 | Ne / Ne / Ne | Ne | 15 125 000 Kč | Detail |
| VN67-3D | 3+kk | 3. patro | 86 m2 | Ne / 2 m2 / Ne | Ne | 26 355 000 Kč | Detail |
| VN67-3E | 2+kk | 2. patro | 59 m2 | Ne / Ano / Ne | Ne | 17 662 000 Kč | Detail |
| VN67-3F | 2+kk | 2. patro | 49 m2 | Ne / Ne / Ne | Ne | 14 820 000 Kč | Detail |
| VN67-3G | 2+kk | 2. patro | 49 m2 | Ne / Ne / Ne | Ne | 14 235 000 Kč | Detail |
| VN67-4A | 2+kk | 3. patro | 54 m2 | Ne / Ano / Ne | Ne | 16 296 000 Kč | Detail |
| VN67-4B | 2+kk | 3. patro | 78 m2 | Ne / Ano / Ne | Ne | 23 436 000 Kč | Detail |
| VN67-4C | 2+kk | 3. patro | 50 m2 | Ne / Ne / Ne | Ne | 15 429 000 Kč | Detail |
| VN67-4D | 3+kk | 4. patro | 90 m2 | Ne / 4 m2 / Ne | Ne | 27 034 000 Kč | Detail |
| VN67-4E | 2+kk | 3. patro | 61 m2 | Ne / Ano / Ne | Ne | 18 226 000 Kč | Detail |
| VN67-4G | 2+kk | 3. patro | 48 m2 | Ne / Ano / Ne | Ne | 14 317 000 Kč | Detail |
| VN67-5A | 2+kk | 4. patro | 80 m2 | Ne / Ano / Ne | Ne | 24 243 000 Kč | Detail |
| VN67-5B | 2+kk | 4. patro | 50 m2 | Ne / Ne / Ne | Ne | 15 449 000 Kč | Detail |
| VN67-5C | 2+kk | 4. patro | 54 m2 | Ne / Ne / Ne | Ne | 16 210 000 Kč | Detail |
| VN67-5D | 3+kk | 5. patro | 94 m2 | Ne / Ne / Ne | Ne | 28 766 000 Kč | Detail |
| VN67-5E | 2+kk | 4. patro | 58 m2 | Ne / Ne / Ne | Ne | 17 429 000 Kč | Detail |
| VN67-5F | 2+kk | 4. patro | 57 m2 | Ne / Ne / Ne | Ne | 17 337 000 Kč | Detail |
| VN67-5G | 2+kk | 4. patro | 53 m2 | Ne / 2 m2 / Ne | Ne | 15 907 000 Kč | Detail |
| VN67-6A | 2+kk | 5. patro | 64 m2 | Ne / Ano / Ne | Ne | 18 522 500 Kč | Detail |
| VN67-6B | 2+kk | 5. patro | 56 m2 | Ne / Ne / Ne | Ne | 16 818 000 Kč | Detail |
| VN67-6C | 2+kk | 5. patro | 50 m2 | Ne / Ne / Ne | Ne | 14 796 000 Kč | Detail |
| VN67-6D | 3+kk | 6. patro | 110 m2 | Ne / Ne / Ne | Ne | 33 409 500 Kč | Detail |
| VN67-6E | 2+kk | 5. patro | 90 m2 | Ne / Ne / Ne | Ne | 24 331 000 Kč | Detail |
| VN67-6F | 2+kk | 5. patro | 93 m2 | Ne / Ano / Ne | Ne | 24 716 500 Kč | Detail |
| VN67-01A | 2+kk | 1. podzemní podlaží | 81 m2 | Ne / Ano / Ne | Ne | 19 875 000 Kč | Detail |
| VN67-01B | 2+kk | 1. podzemní podlaží | 52 m2 | Ne / Ano / Ne | Ne | 12 645 000 Kč | Detail |
| VN67-02A | 2+kk | 2. podzemní podlaží | 73 m2 | Ne / Ne / Ne | Ano (25 m2) | 11 980 000 Kč | Detail |
| VN67-02B | 2+kk | 2. podzemní podlaží | 59 m2 | Ne / Ne / Ne | Ano (12 m2) | 11 895 000 Kč | Detail |